钢布局的本家儿体是柱、粱,用软件自带的识别东西无疑会便利良多,下面我们来说说如何识别钢柱
工具/原料
- 钢布局算量软件(GJG2015)
方式/步骤
- 1
前面已经降到过轴网的提取,在轴网提取好后我们起头识别柱。打开朋分好的图纸,点击识别构建表,左键选择,右键确认

- 2
呈现如下界面,按图上字体讲呈现的表格点窜好后点确认

- 3
下面起头提取,点击识别柱边线,左键选择,右键确认

- 4
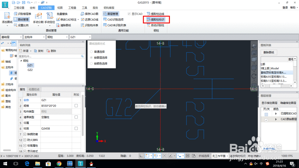
接着点击识别柱标识,左键选择,右键确认

- 5
最后点击主动识别柱,呈现下图,右边红框的不消注重,叉失落不管,我们直接在三维图上看就好

- 6
打开已提取图层,关失落原始图层,用三维来看,就是标红的阿谁球

注重事项
- 提取最好一次提取完整,不然再次提取的话,轻易呈现反复,下次讲呈现反复如何处置
- 若是对你有帮忙的话,麻烦点个赞投下票







