在Revit软件怎么选择统一类的全数图元?这里用Revit2015版本举例申明,Revit软件怎么选择统一类的全数图元?

工具/原料
- Revit软件
方式/步骤
- 1
启动Revit软件,打开一文件,如图所示界面

- 2
选择图中的门,接着单击右键,弹出列表,选择全数实例


- 3
在弹出列表,选择全数实例——在视图中可见。如许会将视图中,全数可见的门,全数选中

- 4
选择后,在右下角漏斗外形中,可以看到在选中了2个不异图元的门

- 5
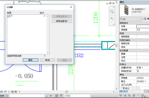
在过滤器中,显示已经选中了两个图元(门)

在Revit软件怎么选择统一类的全数图元?这里用Revit2015版本举例申明,Revit软件怎么选择统一类的全数图元?

启动Revit软件,打开一文件,如图所示界面

选择图中的门,接着单击右键,弹出列表,选择全数实例


在弹出列表,选择全数实例——在视图中可见。如许会将视图中,全数可见的门,全数选中

选择后,在右下角漏斗外形中,可以看到在选中了2个不异图元的门

在过滤器中,显示已经选中了两个图元(门)

16分钟前0阅读
16分钟前0阅读
16分钟前0阅读
16分钟前0阅读
16分钟前0阅读
16分钟前0阅读
16分钟前0阅读
16分钟前0阅读
16分钟前0阅读
1小时前0阅读