绘制墙时,请遵循以下最佳做法以当作功建模并提高工作效率。

工具/原料
- revit
最佳做法:墙
- 1
对多楼层建筑建立外墙时,利用从最底层标的目的最高层扩展的墙。利用多个墙或叠层墙以用于材质更改或墙机关更改(墙类型)。

- 2
要使墙的偏向在外墙和内墙之间翻转,请选择墙并单击显示在它旁边的蓝色翻转控件。 翻转控件老是显示在 Revit 理解为外墙的那一侧。

- 3
墙体不会主动附着到其他建模构件上,例如屋顶和天花板。 选中墙体,然后利用“附着”东西和“分手”东西来明白地附着墙体。

- 4
当绘制墙时,可以经由过程为选项栏上的“偏移”指定值来设置其与光标的偏移距离。 可以指定测量偏移时基于的定位线。

- 5
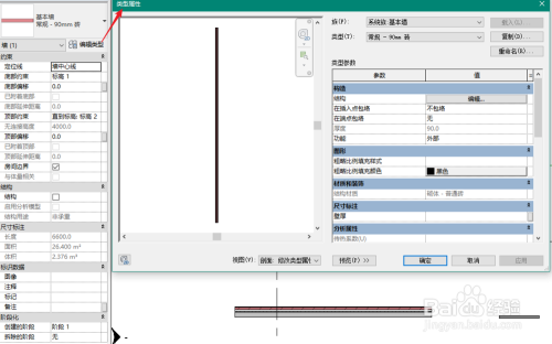
可从项目浏览器拜候墙类型属性。 在项目浏览器中,依次睁开“族”、“墙”以及一个墙族,然后在墙类型上单击鼠标右键。 单击“属性”可拜候“类型属性”对话框,可在此中点窜墙属性。

- 6
若是重定名或建立一种墙类型,请在名称中指示墙功能,并在“类型属性”对话框中指定“功能类型”属性(内墙、外墙、根本墙、挡土墙、檐底板或焦点竖井)。影响"热负荷和冷负荷"

- 7
默认环境下,内分隔墙的墙顶定位标高设置为上方标高。

- 8
可以在两面墙之间拖曳从属件,如门和窗。放置在两面墙毗连处的门。

注重事项
- 避免对建筑模子(和墙)进行过度建模或过度约束,以减小项目尺寸、降低复杂性。
- 在视图中显示墙层信息时要谨严。 尽可能最年夜水平地降低具体水平。







