做家装的都知道,户型图是很主要的,从户型图上我们能知道衡宇的根基信息,我们要按照户型图和现场环境,来设计和安插房间。所以必然要画好。接下来我们来看一下户型图该怎么画。

工具/原料
- 户型图
- cad
方式/步骤
- 1
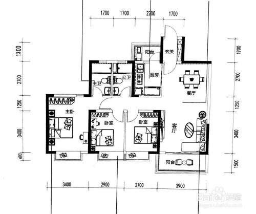
画户型图之前,我们需要先去和业本家儿商定好时候,去现场量房,在纸上手工先画一个草图,将尺寸量出来,尺寸必然要量精确。后期是要按照这个尺寸,来作图,需要用手机进行拍细节。

- 2
打开cad软件,按照量房的尺寸图,从左到右,或者从右到左将房子内部布局画一遍。尺寸按照量房的数据来,画的时辰尺寸要输入精确。

- 3
内部尺寸画好之后,我们需要画上外墙厚度,可以操纵O偏移键,偏移出外墙的尺寸,一般是240或者280,再操纵F倒角号令,将偏移的线修剪一下。

- 4
画出窗户,窗户画出来之后,将量房时量出的窗高,窗户距地高度。窗户到顶高度,这些信息,做一个表,放在窗户的旁边。

- 5
画好之后,我们需要将承重墙的位置标出来,要否则不知道哪些墙是可以拆除的,哪些墙是不克不及拆除的,这个信息必然要在图上标出来。承重墙可以按照现场来判定,也可以按照宣传户型图来标,标过之后去现场查对一下。

- 6
最后一部,就是需要将内部尺寸,和外部尺寸标出来。并标上层高档细节性的信息。经由过程以上这些步调,户型就画好了,接下要做的就是如何去设计这个衡宇了。

注重事项
- 接待点赞,投票,保藏。存眷本小编。








