此刻良多装饰公司的施工图都是在CAD结构中绘制,在结构里面绘图,便利办理图层和点窜图纸。此刻我们来进修如何在CAD结构里画施工图。
工具/原料
- AutoCAD2007,AutoCAD2010,AutoCAD2014
方式/步骤
- 1
打开AutoCAD,封闭栅格。单击“结构1”,鼠标右键单击空白处,单击“选项”。


- 2
打开“选项”对话框,在“显示”选项卡里面单击“颜色”,打开“图形窗口颜色”。选择:图形/结构→同一布景→黑→应用并封闭。打消勾选“显示图纸暗影”,再打消勾选“显示图纸布景”。


- 3
菜单:格局→单元。在“图形单元”对话框里面选择“毫米”。


- 4
右键单击“结构1”,选择“页面设置办理器”。在页面设置办理器”选择“点窜”。


- 5
在“页面设置-结构1”里面,“打印机/画图仪”选择“DWG To PDF.pc3”。
“图纸尺寸”选择“ISO full bleed A3(420x297毫米)”,
“打印比例”设置“1毫米=1单元”。最后确定。

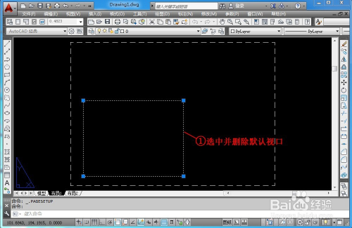
- 6
删除默认视口,插入一个A3图框。单击“模子”,在模子空间绘制如图所示平面图。再单击“结构1”,回到结构空间。




- 7
号令行输入“MV”,回车确定,在如图位置拖动鼠标,建立一个矩形视口。
单击选择视口,再单击“视口比例”按钮,选择“自界说”。打开“添加比例”对话框。设置比例名称“1:75”,图纸单元:1,图形单元:75。确定。




- 8
再次选择视口,单击“视口比例”选择“1:75”。
然后单击“锁定/解锁视口”按钮,锁定视口比例。
单击“图纸”按钮,转到“模子”。


- 9
在“图层节制”里面,选择“在当前视口冻结或者解冻图层”按钮,在当前视口冻结“门层”和“门套层”。

- 10
单击“模子”按钮,转到“图纸”。
如图所示,复制图框和视口到右侧。在右侧视口中双击鼠标,激活“模子”。在“图层节制”里面,在当前视口解冻“门层”和“门套层”。
完当作两张图纸的建造。
用layfrz和layvpi两个号令来冻结图层,这是在视口画图常用的两个号令。
layfrz的功能是在当前视口冻结选择对象地点的图层。
layvpi的功能是在当前视口之外的其它所有视口冻结当前选择对象地点的图层。



注重事项
- 感谢您的阅读,但愿能给您带来一点收成,麻烦您 “点赞”和“投票”,感谢!
- 若是“存眷我”,不懂的可以联系我,具体解答。










