二、
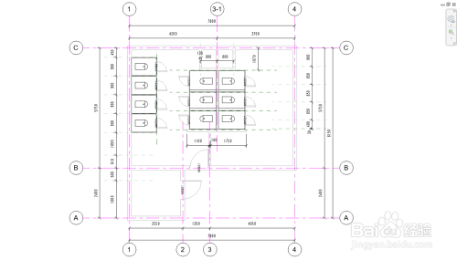
1.按照给出的图纸绘制出建筑形体,建筑层高为4m,包罗墙、门、楼板、卫浴装配等,无障碍卫生间内无障碍举措措施(扶手等)可不考虑,未标明尺寸不做明白要求。
2.按照管井内各本家儿管位置,自行设计卫生间内的给排水路由,排水管坡度为8‰,给排水管道穿墙时开洞环境不考虑,洗手盆热水管道不考虑。
请将模子文件以“卫生间设计+考生姓名.xxx”为文件名保留到考生文件夹中。(20分)
本题可拆解为三个部门:土建模子、卫浴设备、管道。下面依次进行绘制。

工具/原料
- Autodesk Revit 2018
第一步、绘制土建模子
- 1
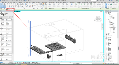
打开Autodesk Revit 2018,选择机械样板。

- 2
在项目浏览器,选择响应的视图绘制标高、轴网或参照线。

- 3
在属性中将图形下规程,将机械改为协调;
并按照“平面图1:50”绘制建筑轮廓,建筑层高为4m,包罗墙、门、楼板。(为了便于区分参考线,建议将轴网颜色改为紫色),卫浴隔绝距离没有出格要求,为节约时候采用墙东西绘制即可。

第二步、设置卫浴设备
- 1
在系统→卫浴装配→载入→机电→卫生器具→蹲便器→蹲便器 - 自闭式冲刷阀.rfa载入项目

- 2
蹲便器靠墙边放置,调整尺寸后,复制到其它位置,完当作蹲便器放置。

- 3
载入其余卫浴设备族,按图纸放置,并调整尺寸。


第三步、管线设置
- 1
绘制立管:找到系统,选择管道,偏移值设置为-1500mm,然后在平面视图中鼠标左键选择点一下,确定管道位置,再把偏移值改为5000mm,应用。将直径改为150mm,立管就完当作了。

- 2
设置系统类型:在项目浏览器睁开 管道→管道系统、选择一个类型复制→重定名为排水管、给水管→选择排水管和给水管→右键,选择类型属性,更改材质。并回到属性浏览器中,将系统类型改为排水管。


- 3
将方才绘制的立管按照图纸对应位置复制,更改对应管道系统类型为给水管。

- 4
绘制横管:系统→管道→直径按需调整→偏移-500→坡度0.8% 进行绘制


- 5
将卫浴设备毗连到管道上:一小便器为例,选择小便器,在号令栏找到“毗连到”选择卫生设备,这时辰它会主动毗连到卫浴设备上,确定。

- 6
按不异方式绘制其余管道,当发现坡度不合错误时,利用坡度号令东西进行点窜。


- 7
添加地漏:载入族,在机电,卫浴附件,地漏中选择一种地漏,载入项目,毗连到管道,


- 8
给水管绘制和排水管做法不异。完当作后以“卫生间设计+考生姓名.xxx”为文件名保留到考生文件夹中。











