ug是一条目常用的三维软件,具有很是壮大的功能,今天小编教大师操纵ug绘制一个简单的模子。
工具/原料
- 电脑
- ug10.0
方式/步骤
- 1
首先我们双击桌面图标打开ug软件。如图所示。

- 2
点击新建,选择模子,点击确定,或者点击鼠标中键。进入软件、如图所示。

- 3
点击草图选择xy面点击确定,进入草图,如图所示。

- 4
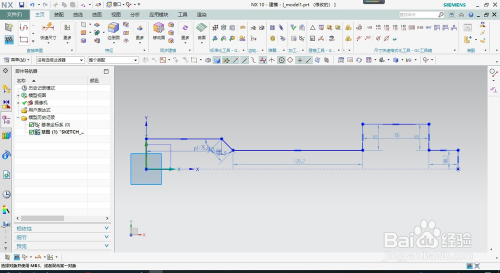
进入草图绘制如下草图,如图所示。

- 5
退出草图,点击扭转号令。拟定矢量和点。如图所示,点击确定。

- 6
再给模子倒个角,如图所示。


ug是一条目常用的三维软件,具有很是壮大的功能,今天小编教大师操纵ug绘制一个简单的模子。
首先我们双击桌面图标打开ug软件。如图所示。

点击新建,选择模子,点击确定,或者点击鼠标中键。进入软件、如图所示。

点击草图选择xy面点击确定,进入草图,如图所示。

进入草图绘制如下草图,如图所示。

退出草图,点击扭转号令。拟定矢量和点。如图所示,点击确定。

再给模子倒个角,如图所示。


25分钟前0阅读
25分钟前0阅读
25分钟前0阅读
25分钟前0阅读
25分钟前0阅读
25分钟前0阅读
25分钟前0阅读
1小时前0阅读
1小时前0阅读
1小时前0阅读