CAD导出png的具体操作方式。
工具/原料
- AutoCAD 2013
方式/步骤
- 1
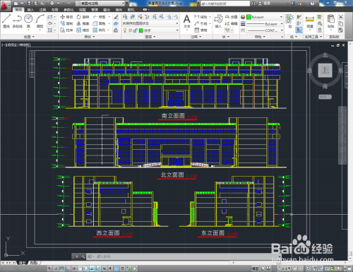
打开AutoCAD 2013软件,将我们要导png的图纸打开;

- 2
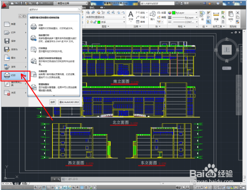
点击【文件】-【打印】,将打印设置栏调出;


- 3
选择PublishToWeb PNG .pc3后,按图示设置导出png的各个参数;


- 4
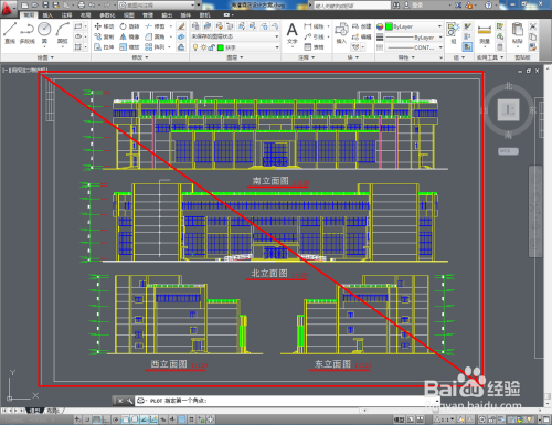
点击【窗口】,框选我们要导png的图纸,点击【确定】(如图所示);


- 5
最后,设置好保留路径,点击【保留】即可。



CAD导出png的具体操作方式。
打开AutoCAD 2013软件,将我们要导png的图纸打开;

点击【文件】-【打印】,将打印设置栏调出;


选择PublishToWeb PNG .pc3后,按图示设置导出png的各个参数;


点击【窗口】,框选我们要导png的图纸,点击【确定】(如图所示);


最后,设置好保留路径,点击【保留】即可。



1分钟前0阅读
1分钟前0阅读
1分钟前0阅读
1分钟前0阅读
1分钟前0阅读
1分钟前0阅读
1分钟前0阅读
1小时前0阅读
1小时前0阅读
1小时前0阅读